北京市 切换城市

一站式互联网装修公司

打造优质办公环境

免费咨询 预约设计 186-0068-7097
您当前的位置: 首页-案例欣赏-热门-厂房

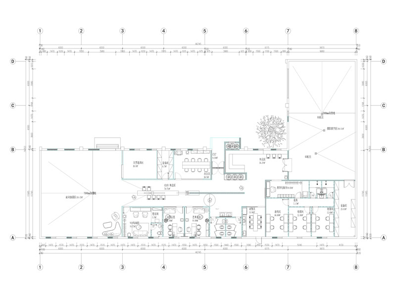
厂房改造摄影棚

时间:2021-07-09

相关推荐:

大兴会所

娱乐会所

上一篇: 厂房改造展厅
下一篇: 没有了 ...
装修案例
装修知识
装修咨询热线:18600687097

【编辑:】

【关键词: 厂房改造装修设计,】 

本文链接:/



十分感谢您的支持!
我们工作人员会在24小时内与您取得联系,谢谢!